Схема электрическая принципиальная УВН 10(6) кВ
te00002560, Указатель напряжения УВН 6-10 С (Ан...
Указатель высокого напряжения УВН 6-10 С купить...
Ленточный фундамент УВН-10(6) из 2-х блок-модул...
Покажчик напруги 6-10кВ УВН Пошук-10АМ світлова...
Покажчик напруги увн 6-10 | Порівняти ціни та к...
Купить Указатель высокого напряжения УВН 6-10 С...
Указатель высокого напряжения УВН 6-10 С 6-10кВ...
Указатель высокого напряжения 6 - 10 кВ типа УВ...
УВНсТФ-6-10 указатель напряжения 6...10кВ с фаз...
Собственные нужды 2КТП и УВН-10(6)
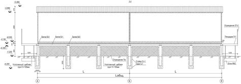
Свайный фундамент УВН-10(6) из 2-х блок-модулей...
КРУ ЯКНО-6(10) КРН-6(10) Шкаф высоковольтный КТ...
Указатели высокого напряжения УВН-6-10 С ТФ (ан...
Указатель напряжения УВН 6-10 КБ купить в Москв...
Указатель напряжения: УВН 6-10 КБ В — купить по...
Свайный фундамент УВН-10(6) из 4-х блок-модулей...
Указатель высокого напряжения УВН 80-2М ТФ 6-10...
Конструкция УВН: из чего состоит устройство, ег...
Указатель напряж. УВН-6-10 С (Аналог УВН-80-2М/...
Купить Указатель напряжения УВН-80-2М с ТФ 6- 10кВ
Указатель высокого напряжения УВН 6-10 с ТФ куп...
Указатель напряжения: УВН 6-10 КБ — купить по ц...