Мат с бобышками теплого пола Пенощит WF 16-50
Житель Красноярского края хранил у себя мешки с...
Опилки с известью как утеплитель - YouTube
МАТЫ С БОБЫШКАМИ (БОБЫШКИ ДЛЯ ТЕПЛОГО ПОЛА) - Y...
Мат с бобышками для труб Uni Fitt 820M2088 купи...
Назарово Теплит Лайт Супер | ИркСтройГрупп
Советы по выбору и использованию матов для тепл...
Завод - Маты для теплого пола с бобышками
Утеплитель с фольгой: виды и применение
Утеплитель с фольгой - информация для покупателей
Фольгированный утеплитель для стен, купить утеп...
Купить маты для теплого пола с бобышками, подло...
Утеплители для каркасного дома – разновидности,...
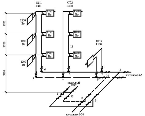
Чертежи системы отопления здания
Экоутеплитель самый безопасный утеплитель Дом и...
Утеплитель для дома пробковый - YouTube
Мат для теплого пола с бобышками купить мат вод...
Ботаник. Утеплитель для дома пробковый агломера...
Рулонный утеплитель – купить в Москве, размеры ...
Бесплатный утеплитель на крыше. Древний метод и...
Маты с бобышками для теплого пола купить в инте...
Про пенопласт с бобышками и не только. - YouTube
Материал утеплитель
Купить Ктс-б с гильзами и бобышками (d6, l50, p...
Мягкие утеплители - YouTube
Маты с бобышками. укладка.обзор и монтаж матов....