Діелектрики - презентация, доклад, проект скачать
ДИС Электронные Решения | Moscow
Закупка и снабжение электронных компонентов
Диэлектрический компаунд 3М Scotchcast 2123 — B...
Электрические коммутационные бесконтактные аппа...
Диелектрик - Wikiwand
Диэлектрики - Виды, характеристики и где примен...
Диэлектрики. Классификация
Диэлектрики - презентация онлайн
Компаунд: что это такое, виды, использование, с...
Диэлектрики в электрическом поле - презентация ...
Компаунд теплопроводящий диэлектрический заливн...
Созданы энергоэффективные коммутаторы для центр...
Das Elektro - Поставщик электронных компонентов
ЧИП и ДИП - интернет-магазин приборов и электро...
Диэлектрики в электрическом поле. Лекция №4 - п...
Инновационная защита для электрооборудования, 4...
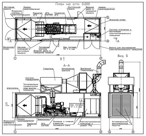
Дизельные электростанции | ЭЛЕКТРУМ НН
Компаунды и силиконы для электроники | Дмитрий ...
компас-электрик учебный файл - YouTube
Електроізоляційні матеріали - купити поліуретан...
Электронные компоненты - ООО "Компотрейд"
Контейнеры для ДГУ, ДЭС - изготовление и реализ...
Интернет магазин электронных компонентов ДАРТ
Проводники и диэлектрики в электрическом поле -...
Лекция_Диэлектрики
Зачем Раздельная коммутация? - Di Electric
Электронный компонент Пассивность Электроника Э...